Classic Range Integrated Font

HydroTap Classic Range Integrated Font

01034266_G4 Classic Font_Chrome

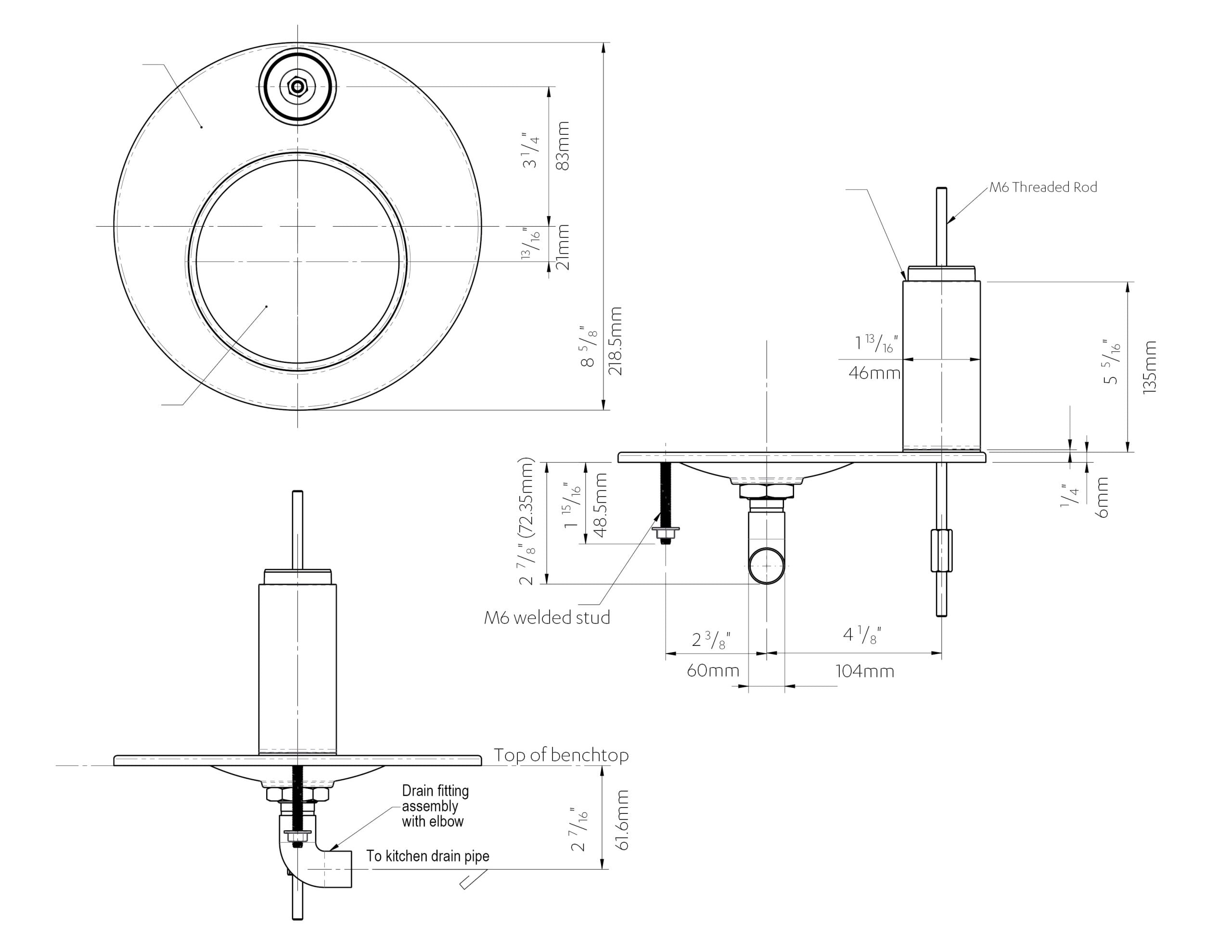
The HydroTap Classic Range Integrated Font / Drip Tray is an optional accessory that should be specified with the HydroTap Classic, Classic Plus, Elite Plus and Touch-Free Wave taps when the tap is being installed away from the sink as a standalone system. The Classic Range Integrated Font is available in six finish options to match the corresponding taps.

HydroTap Classic Range Integrated Font / Drip Tray – Specifications:

  • Space Requirements: 8-5/8″ long x 8-5/8″ wide (218.5mm x 218.5mm)
  • Hole size for bowl: 3 3/8″ (86mm)
  • Hole size for tap: 1 3/8″ (35mm)
  • Hole for M6 stud: 3/8″ (10mm)
  • Available Finishes: Chrome, Brushed Chrome, Matte Black, Brushed Gold, Brushed Nickel & Gunmetal
Download Specifications

Request Quote